-type




 

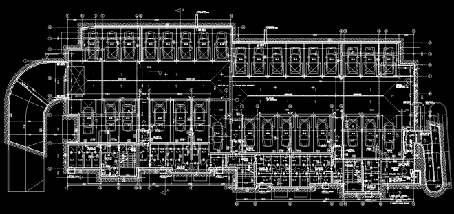
    RODZINNA ENKLAWA


    BUDYNEK WIELORODZINNY Z GARAŻEM PODZIEMNYM,  BIELANY WROCŁAWSKIE

    REALIZACJA 2011-2013
   

    29 MIESZKAŃ      32  MIEJSCA W GARAŻU PODZIEMNYM      TARASY PRYWATNE

    POW CAŁKOWITA 3989 mkw     KUBATURA 13305 m3