-type




 
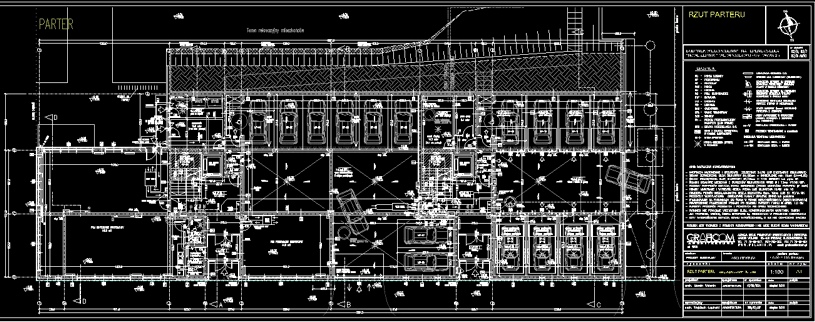
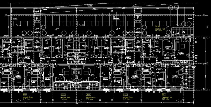
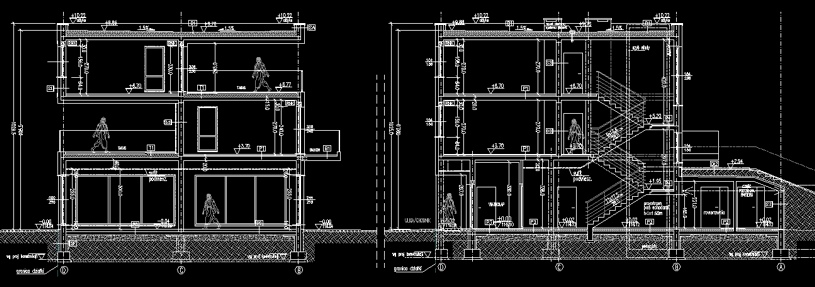
    NOWE ŻERNIKI / WUWA2   budynek wielorodzinny  Kooperatywa  III

    budynek z lokalami usługowym i garażem halowym - grupa Inwestorów prywatnych  ( tzw Kooperatywa )

 

    WROCŁAW   ul. Krystyny i Mariana BARSKICH    REALIZACJA 2017-2018
   
    CAŁKOWITA POW UŻYTKOWA  1751  mkw