-type




 
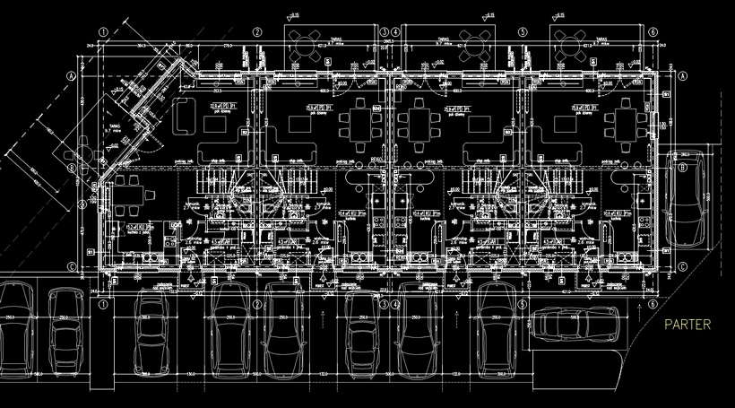
    ZESPÓŁ BUDYNKÓW JEDNORODZINNYCH dwulokalowych w zabudowie bliźniaczej

    Inwestor:  3MSBUD Sp. z o.o.

 

    WROCŁAW  ul. Iłłakowiczówny    REALIZACJA 2021-2024  ( wybudowany )
   
    CAŁKOWITA POW UŻYTKOWA  1369  mkw