-type




 
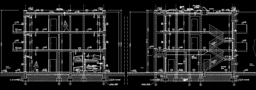
    NOWE ŻERNIKI / WUWA2   budynek wielorodzinny Kooperatywa II

    budynek z lokalem usługowym i garażami indywidualnymi - grupa Inwestorów prywatnych  ( tzw Kooperatywa )

 

    WROCŁAW  ul. Heinricha Lauterabacha     REALIZACJA 2017-2018
   
    CAŁKOWITA POW UŻYTKOWA 934  mkw   
   
    OBIEKT W GRONIE LAUREATÓW KONKURSU NA NAJLEPSZĄ REALIZACJĘ ARCHITEKTONICZNĄ  ROKU 2018
    PREZYDENTA WROCŁAWIA i TOWARZYSTWA MIŁOŚNIKÓW WROCŁAWIA - edycja XXIX / 2019