http-equiv="content-type">





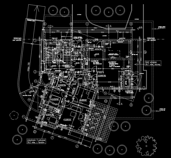
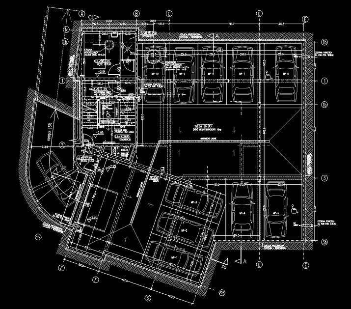
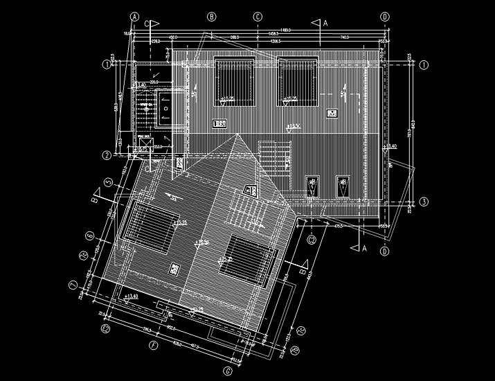
    budynek wielorodziny z garażem podziemnym

    
JEDNOKLATKOWY BUDYNEK WIELORODZINNY Z GARAŻEM PODZIEMNYM
    OLEŚNICA - ul HALLERA
    REALIZACJA 2008-2009
   

    7 MIESZKAŃ    10 MIEJSC W GARAŻU PODZIEMNYM    1 LOKAL USŁUGOWY

    CAŁKOWITA POW UŻYTKOWA 930 mkw    POW ZABUDOWY 178 mkw

     
   

      













WIZUALIZACJE PROJEKTOWE









 :